Gelegenheit - Mehrfamilienhaus in Meggerholm zu verkaufen.
10.00 Zimmer - Meggerholm - 430.00m² - €257.000
Mehrfamilienhaus
* Der Kaufpreis versteht sich zzgl. 3,57% Provision inkl. MwSt.
ANGABEN ZUM ENERGIEAUSWEIS
Energiekennwert: Verbrauch – Energieverbrauchskennwert: kWh/(m²*a) – Energieausweis Ausstellungsdatum: – Warmwasser im Energieverbrauch enthalten: – Engergieausweis gültig bis:







Dieses Mehrfamilienhaus besteht aus 4 Wohnungen. Ursprünglich gebaut in 1950 dann 1986 erfolgte der Dauchausbau im Haupthaus mit dem verglastem Nebeneingang. In 1996 wurden die Wohnungen im Anbau ausgebaut.
Die letzte Sanierung erfolgte 2002.
Alles Wohnungen sind mit modernen Bädern und Einbauküchen ausgestattet. Es besteht kein nennenswerter Sanierungsstau.
INNEN FOTOS FOLGEN
Whg. 1 selbstbewohnt 450,- Euro Kaltmiete + 180- Euro NK
Whg. 2 vermietet 470,- Euro Kaltmiete + 180,- NK
Whg. 3 vermietet 420,- Euro Kaltmiete + 130,- Euro NK
Whg. 4 vermietet 350,- Euro Kaltmiete + 130,- Euro NK
Gesamt Kaltmiete 1690,- Euro monatlich/ 20280,- Euro jährlich
Die Mieten sind so moderat ausgelegt und haben Steigerungspotential.
Wohnung 1 Erdgeschoß gesamt 94,57 qm
Schlafen - 12,49qm
Wohnen - 22,73qm
Küche - 14,16qm
Flur - 14,28qm
Schlafen -15,61qm
Bad - 9,83qm
Abst. - 5,47qm
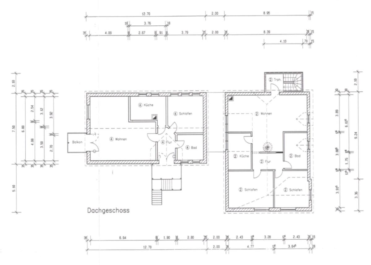
Wohnung 2 Dachgeschoß gesamt 108,84 qm
Trph. - 8,28 qm
Trph. - 3,53 qm
Schlafen - 18,67 qm
Bad - 9,44 qm
Schlafen - 14,10 qm
Flur - 5,74 qm
Küche - 9,44 qm
Wohnen - 39,64 qm
Wohnung 3 Erdgeschoß gesamt 76,68 qm
Wohnen - 25,24 qm
Flur - 14,37 qm
Küche - 10,53 qm
Schlafen - 18,13 qm
Bad - 8,41 qm
Wohnung 4 Dachgeschoß genamt 77,88 qm
Wohnen - 39,44 qm
Küche - 10,08 qm
Schlafen - 14,50 qm
Bad - 7,56 qm
Flur - 6,30 qm
Räume für alle Wohnungen zugänglich und Nutzbar
Hzg. im Erdgeschoß 11,20 qm
WC im Erdgeschoß 1,98 qm
Der Ort Meggerdorf liegt an der oberen Seite der Landschaft Stapelholm. Durch die Gemeinde fließt die Sorge, die das Landschaftsbild bis heute prägt. Waren früher Seen, Moore und Schilfsümpfe prägend, so wurde das Land über mehrere Jahrhunderte entwässert, die Bennebek und die Sorge in einen künstlichen Kanal, die "Neue Sorge" gelegt und die Geestflüsse direkt in die Eider abgeleitet. Windmühlen - der Name des Ortsteiles Fünfmühlen erinnert daran - sorgten für die Entwässerung.
Weitere Ortsteile sind Meggerkoog, Hölken, Johannisberg und Meggerholm. Die in den 80 Jahren gestartete Flurbereinigung im 2.400 ha großen Gemeindegebiet ließ viel Raum für naturbelassene Flächen und die "Alte Sorge - Schleife", ein ca. 600 ha großes Naturschutzgebiet. Meggerdorf ist dörflich geprägt, ca. 20 landwirtschaftliche Betriebe sind im Ort noch tätig. An der Sorge gibt es eine nette Badestelle.
Die Grundschule des Ortes ist auf dem Johannisberg untergebracht, einem Herrenhaus des gleichnamigen Gutes. Zum Schulgelände zählen Sportplatz und Turnhalle.
Neben der 1890 gegründeten Feuerwehr bieten Sportverein, Schützengilde, DRK-Ortsverein, Angelsportverein, Reitergemeinschaft und Heimatbund ein breites Angebot für die Bevölkerung.
Die Landwirtschaft prägt das Landschaftsbild und unterstreicht die friedliche Umgebung. Als malerisch schön beschrieben ist Meggerdorf noch heute ein Dorf mit vielen Seiten und besonderen Plätzen. Die Sorgeschleife, die alten Moore und die naturbelassene Umgebung, machen Meggerdorf zu einem idealen Ausflugsziel und gesellen sich damit zu der gesamten Stapelholmer Landschaft.
Das dieser Gasthof liegt zwar im Ortskern, aber doch am Ortsrand. Man hat sogar einen wunderbaren Ausblick in die Natur hinter dem Anwesen. (siehe auch das Foto vom Ausblick u. Lageplan)
Das Mehrfamilienhaus wurde in den Jahren 1978 + 1983 und 1996 umgebaut.
Gasbrennwerttherme
1 Carport 5,20m * 5,10m
1 Lagerschuppen 6,30 * 6,60
Dieses Objekt wird Ihnen von Herrn Sönksen präsentiert. Für den Käufer wird eine Courtage in Höhe von 3,57 % inkl. gesetzlicher MwSt des vereinbarten Kaufpreises fällig. Alle Angaben, insbesondere zu Wohn- und Grundstücksflächen, Abmessungen, Ausstattungen, sind ca. Angaben, freibleibend und unverbindlich. Sie beruhen auf den Angaben des Verkäufers oder einer dritten Person. Änderungen und Irrtümer unter Vorbehalt. Die Firma Nordseeimmobilien A. Clausen e.K. übernimmt keinerlei Haftung und keine Gewähr für Vollständigkeit und Richtigkeit der gemachten Angaben. Die Texte, Zeichnungen, Fotos und Beiträge, unterliegen dem urheberrechtlichen Schutz im Sinne des § 2 Abs. 1 Nr. 1 Urhebergesetz (UrhG). Widerrufsrecht Sie können Ihre Vertragserklärung mit der Firma Nordseeimmobilien A. Clausen e.K. innerhalb von 14 Tagen ohne Angabe von Gründen in Textform widerrufen. Die Frist beginnt nach Erhalt dieser Belehrung in Textform, jedoch nicht vor Vertragsschluss und auch nicht vor Erfüllung unserer Informationspflichten gem. Art. 246 § 2 in Verbindung mit § 1 Abs. 1 und 2 EGBGB. Zur Wahrung der Widerrufsfrist genügt die rechtzeitige Absendung des Widerrufs. Der Widerruf ist an Nordseeimmobilien A. Clausen e.K., Damm 2 in 25813 Husum zu richten.
Sie haben noch Fragen?
Gerne helfen wir Ihnen weiter.
COLINEL
Ralph Clausen
Van-der-Smissen-Straße 9
22767 Hamburg
Telefon: +49(0)172/4371400
Mail: ralphclausen@gmail.com