Gelegenheit - großes Ferienhaus in Tating zu verkaufen.
5.00 Zimmer - Tating - 148.00m² - €455.000
Einfamilienhaus
* Der Kaufpreis versteht sich zzgl. 3,57% Provision inkl. MwSt.
ANGABEN ZUM ENERGIEAUSWEIS
Energiekennwert: Verbrauch – Energieverbrauchskennwert: kWh/(m²*a) – Energieausweis Ausstellungsdatum: – Warmwasser im Energieverbrauch enthalten: – Engergieausweis gültig bis:






















Hochwertiger energetischer Zenker Hausbau im Holzrahmenwerk mit Holländischem Handform-Klinker.
Teilbar in 2 Wohnungen zur Zeit als Ferienhaus genutzt.
Erdgeschoss:
Küche 6,97 m²
Windfang 6,36 m²
Abstellraum 9,45 m²
Anschlußraum/Abstell 3,49 m²
Wohnen/Essen 37,31 m²
Flur 4,02 m²
Schlafzimmer 15,72 m²
Bad 5,42 m²
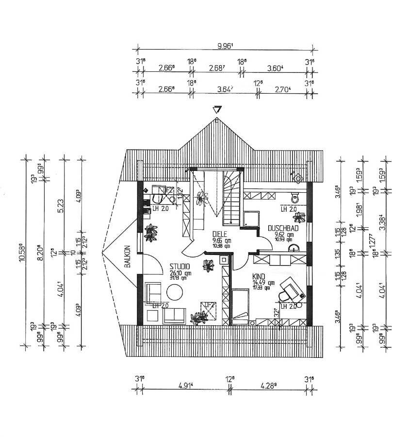
Obergeschoss:
Kinderzimmer 14,49 m²
Studio 26,10 m²
Duschbad 9,62 m²
Diele 9,65 m²
Garage 28,96 m²
Lage
Das Haus liegt in dem kleinen Dorf Tating im Kreis Nordfriesland auf der Halbinsel Eiderstedt.
Die weiten Sandstrände von St. Peter-Ording sind nur ca. 6 km entfernt. Garding
erreichen Sie nach nur 5 km Fahrt und die Hafenstadt Tönning ist in ca. 15 Autominuten erreicht.
Golfern bietet der Deichgrafenhof ein ausgezeichnetes Übungsgelände.
Die nächsten Einkaufsmöglichkeiten finden Sie in St. Peter-Ording oder Garding. Die
Stadt Garding verfügt zum Beispiel über Supermärkte, Bäcker, Metzger, Kindergärten, Schulen und Ärzte, sodass alle Bereiche des täglichen Lebens abgedeckt sind.
In die Theodor-Storm-Stadt Husum sind es mit dem Auto ca. 30 Minuten, zum
Autobahnanschluss in Heide nur ca. 25 Minuten.
Gasheizung
Photovoltaikanlage 3 Jahre alt Jahresertrag 11.000kw/h mit Eigenverbrauchsanschluß
Kaminofen
Wärmeschutzverglasung Verbundfenster aus Holz System Zenker
Photovoltaik Dachanlage
Letzte Renovierung 2013
Überzeugen Sie sich selbst von der Qualität und dem Ambiente dieses außergewöhnlichen Objektes .
- Sie denken über einen Verkauf Ihrer Immobilie nach?
- Sie möchten den genauen Marktwert Ihrer Immobilie erfahren?
- Sie kennen einen Verkäufer der über einen Verkauf nachdenkt?
- Sie sind unzufrieden mit Ihrem aktuellen Verkaufspartner?
- Sie haben Fragen zum Thema Verkauf?
Dann sind Sie bei uns genau richtig, wir kommen gerne unverbindlich zu Ihnen nach Hause um eine aktuelle Marktwerteinschätzung Ihrer Immobilie vorzunehmen.
Dieses Objekt wird Ihnen von Herrn Sönksen präsentiert. Für den Käufer wird eine Courtage in Höhe von 3,57 % inkl. gesetzlicher MwSt des vereinbarten Kaufpreises fällig. Alle Angaben, insbesondere zu Wohn- und Grundstücksflächen, Abmessungen, Ausstattungen, sind ca. Angaben, freibleibend und unverbindlich. Sie beruhen auf den Angaben des Verkäufers oder einer dritten Person. Änderungen und Irrtümer unter Vorbehalt. Die Firma Nordseeimmobilien A. Clausen e.K. übernimmt keinerlei Haftung und keine Gewähr für Vollständigkeit und Richtigkeit der gemachten Angaben. Die Texte, Zeichnungen, Fotos und Beiträge, unterliegen dem urheberrechtlichen Schutz im Sinne des § 2 Abs. 1 Nr. 1 Urhebergesetz (UrhG). Widerrufsrecht Sie können Ihre Vertragserklärung mit der Firma Nordseeimmobilien A. Clausen e.K. innerhalb von 14 Tagen ohne Angabe von Gründen in Textform widerrufen. Die Frist beginnt nach Erhalt dieser Belehrung in Textform, jedoch nicht vor Vertragsschluss und auch nicht vor Erfüllung unserer Informationspflichten gem. Art. 246 § 2 in Verbindung mit § 1 Abs. 1 und 2 EGBGB. Zur Wahrung der Widerrufsfrist genügt die rechtzeitige Absendung des Widerrufs. Der Widerruf ist an Nordseeimmobilien A. Clausen e.K., Damm 2 in 25813 Husum zu richten.
Sie haben noch Fragen?
Gerne helfen wir Ihnen weiter.
COLINEL
Ralph Clausen
Van-der-Smissen-Straße 9
22767 Hamburg
Telefon: +49(0)172/4371400
Mail: ralphclausen@gmail.com